產品分類 / Product Categories
聯系我們 / Contact Us
江西丹巴赫機器人股份有限公司服務熱線:400-697-1188
聯系電話:0791-88133135
公司傳真:0791-88221576
手機號碼:18607918385
公司郵箱:sale@danbahe.cn
公司地址:南昌市高新區創新三路811號
無人叉車AGV應用于食品行業
DANBACH ROBOT

該項目客戶現主要生產雪米餅、香米餅、饃片、饃丁、肉松餅、派類蛋糕、香酥脆、巧趣角、綠豆沙拉等休閑系列食品,集“營養、美味、綠色、休閑”的產品特點于一身,暢銷全國二十多個省、市、自治區,并出口韓國,遠銷東南亞,很受消費者喜愛。
項目背景
搬運物料:完成食品饃、塑料托盤
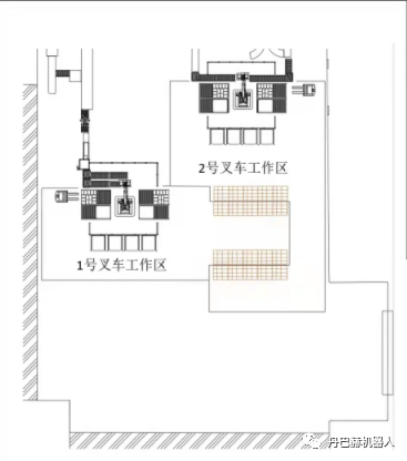
項目場景:成品倉庫
搬運流程:碼垛區搬運至成品周轉區,再空托盤上線
作為食品行業領導者,該企業率先決定引入機器人技術來應對難題,在面對市面上眾多機器人設備提供商,堅持技術方案優先原則
項目難點
作業效率:代替人工高強度作業,降低失誤率
協同對接:對接輸送線、碼垛機,高效協同
環境改善:體積小、噪音低、電動無污染。
解決方案
產品選型:C3系列平衡重AGV叉車 X 2
配套產品:自動充電樁 X 2
手工充電器 X 1
系統配置:AGV調度系統 上位機 無線局域網


由于該公司生產零食小件產品,貨物量大,貨物生產波次頻繁,出入庫流量大,導致搬運效率低下,且在新零售模式的影響下,需要有較高的時效性、準確性,因此對搬運流程進行智能化是必要途徑。
無人叉車通過控制系統、導航系統等遠程模塊進行對接,使多臺叉車能夠做到全區域自動作業。
無人叉車采用激光導航動態適應環境,車身標配激光雷達實現360度全方位避障,同時配備前后防撞條和急停按鈕,保障人、車、貨安全。

應對企業訂單峰值情況,丹巴赫機器人提供多種解決方案,配套自動充電樁和手工充電器,保證機器人7*24小時持續作業,不會停產。
叉車樣式

平衡重式堆垛式叉車AGV是由一個驅動/轉向的前輪和2個定向輪的結構。它適用于運輸各種托盤或紙卷等搬運物料,并能夠滿足不同尺寸的負載單位。
上一篇:無人叉車AGV在合成纖維行業的應用
下一篇:沒有了